Greg Stroh Studio
How do we prepare for challenges that no longer conform to the boundaries of disciplines? If rapidly changing climates, energy flows, material economies, and migratory populations are the emerging challenges of our time, then research and design is urgently needed to enact change in new ways. The studio challenges students to understand and influence the underlying processes of what supports life today as a new generation of research-based creators, innovators and designers. Design research methodology involves interactive, paradisciplinary ways of learning through cross-over research that engages the material, social, spatial, infrastructural, ecological, and political dimensions of design. We look to empower the next generation of designers through a set of novel and alternative methodologies in a collaborative, immersive, and multimedia environment; —an engagement through iteration and interaction through application. We are to address complex, open-ended questions, across a range of scales that are relevant to urban life and the future of design for the 21st century.1
The aim of the studio is to explore what change means in architecture and how it is made manifeste: buildings weather, programs change, envelopes adapt, interiors are reconfigured, systems replaced. We are interested in the kinds of changes that buildings could and should undergo and the scale and speed at which they would occur. We want to examine which changes are necessary, useful, desirable, possible….
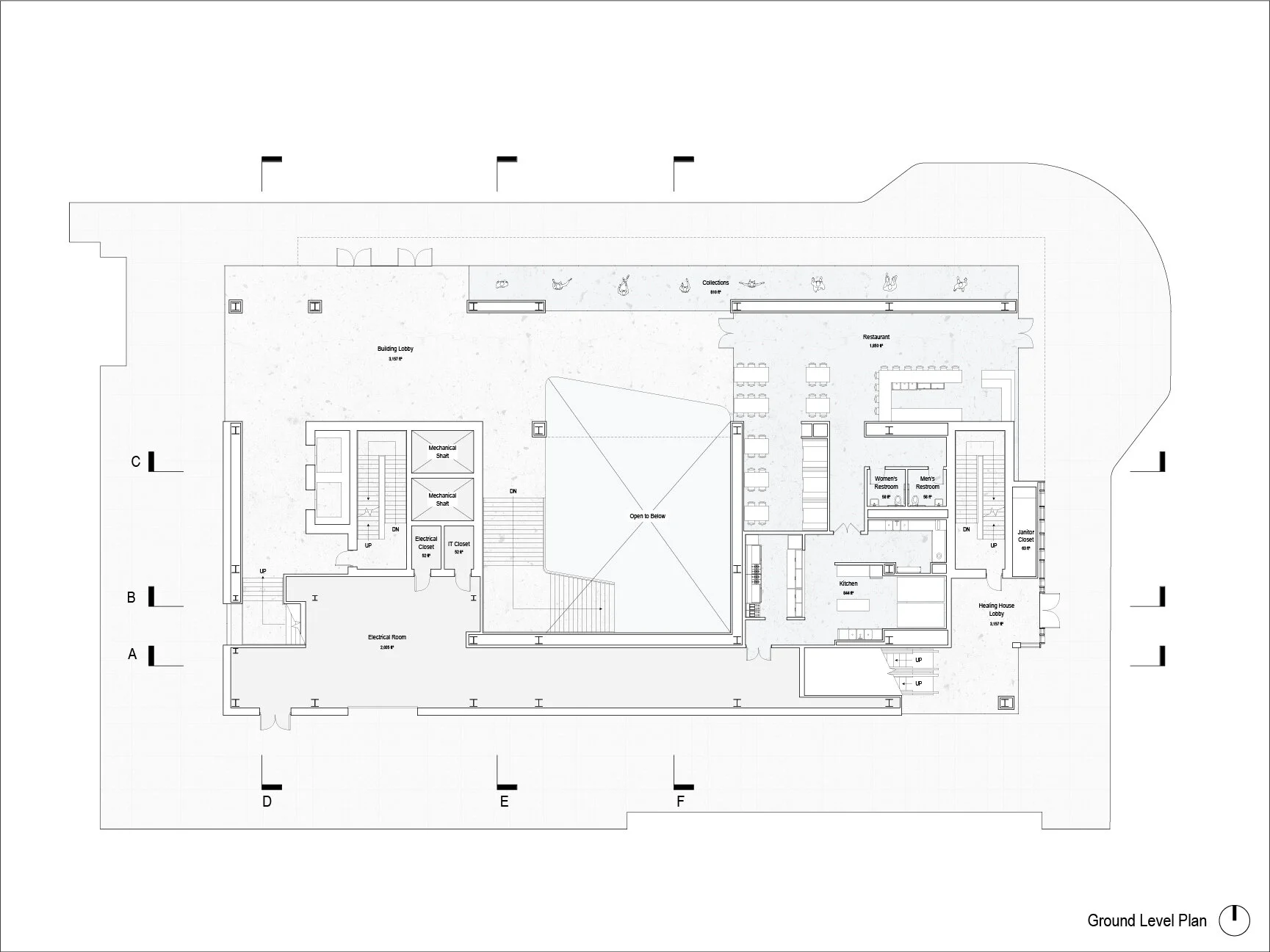
"FHM//21" | Zuzana Kubisova & Justin Byler
"FHM//21" | Zuzana Kubisova & Justin Byler
"FHM//21" | Zuzana Kubisova & Justin Byler
"FHM//21" | Zuzana Kubisova & Justin Byler
"FHM//21" | Zuzana Kubisova & Justin Byler
"FHM//21" | Zuzana Kubisova & Justin Byler
"FHM//21" | Zuzana Kubisova & Justin Byler
"FHM//21" | Zuzana Kubisova & Justin Byler
"FHM//21" | Zuzana Kubisova & Justin Byler
"Fashion House, Miami" | Shreya Patel & Ashley Austin
"Fashion House, Miami" | Shreya Patel & Ashley Austin
"Fashion House, Miami" | Shreya Patel & Ashley Austin
"Fashion House, Miami" | Shreya Patel & Ashley Austin
"Fashion House, Miami" | Shreya Patel & Ashley Austin
"Fashion House, Miami" | Shreya Patel & Ashley Austin
"Fashion House, Miami" | Shreya Patel & Ashley Austin
"Fashion House, Miami" | Shreya Patel & Ashley Austin
"Fashion House, Miami" | Shreya Patel & Ashley Austin
"La Vue - Miami Fashion House" | Aileen Lin & Evan Bluemel
"La Vue - Miami Fashion House" | Aileen Lin & Evan Bluemel
"La Vue - Miami Fashion House" | Aileen Lin & Evan Bluemel
"La Vue - Miami Fashion House" | Aileen Lin & Evan Bluemel
"La Vue - Miami Fashion House" | Aileen Lin & Evan Bluemel
"La Vue - Miami Fashion House" | Aileen Lin & Evan Bluemel
"La Vue - Miami Fashion House" | Aileen Lin & Evan Bluemel
"La Vue - Miami Fashion House" | Aileen Lin & Evan Bluemel
"La Vue - Miami Fashion House" | Aileen Lin & Evan Bluemel